中古物件詳細情報
物件概要
- 価格
- 1,700万円
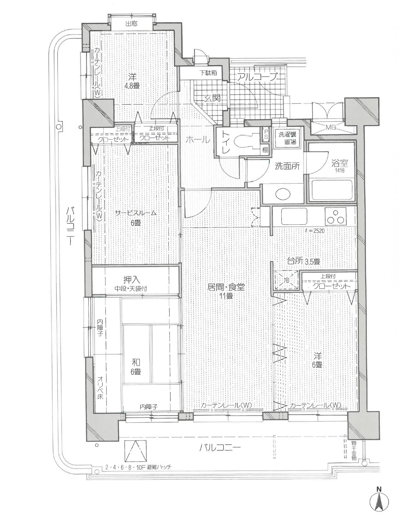
- 間取り
- 3LDK+S
- 所在地
- 愛知県一宮市音羽三丁目2‐5
- 交通
- 一宮総合駅 徒歩12分(約920m)
- 専有面積
- 80.06㎡(約24.21坪)
- バルコニー面積
- 27.22㎡
- 建物構造
- 鉄骨鉄筋コンクリート造
- 建物階建
- 地上10階
- 所在階
- 3階
- 総戸数
- 19
- 築年月
- 1996年11月完成
- 向き
- 南
- 敷地権利
- 所有権
- 用途地域
- 準工業地域
- 管理費
- 8,800円
- 修繕積立金
- 14,800円
- 駐車場
- 6,000円(2019年10月現在)
- 設計・監理
- 清水建設株式会社一級建築士事務所
- 施工
- 清水建設株式会社
- 管理形態
- 全部委託(巡回)
- 管理会社
- エムジー総合サービス株式会社
- 現況
- 居住中
- 引渡時期
- 相談
- 取引形態
- 仲介
周辺環境
- ◎交通機関
- JR東海道本線・名鉄名古屋本線「一宮総合」駅徒歩12分(約920m)
※各施設への距離は地図上の概測で、徒歩80m1分で算出。 車・自転車は実測(交通事情を除く)によるものです。



【マンションの特徴】
可動間仕切りでリビングダイニングを17畳として利用できる間取り
玄関・トイレ・化粧室に換気用の窓を設置
南面9.1mのワイドバルコニー+回廊型バルコニー